Łatwy zwrot towaru
Podnośnik dwukolumnowy automatyczny AMT Techwar TL0002 230V
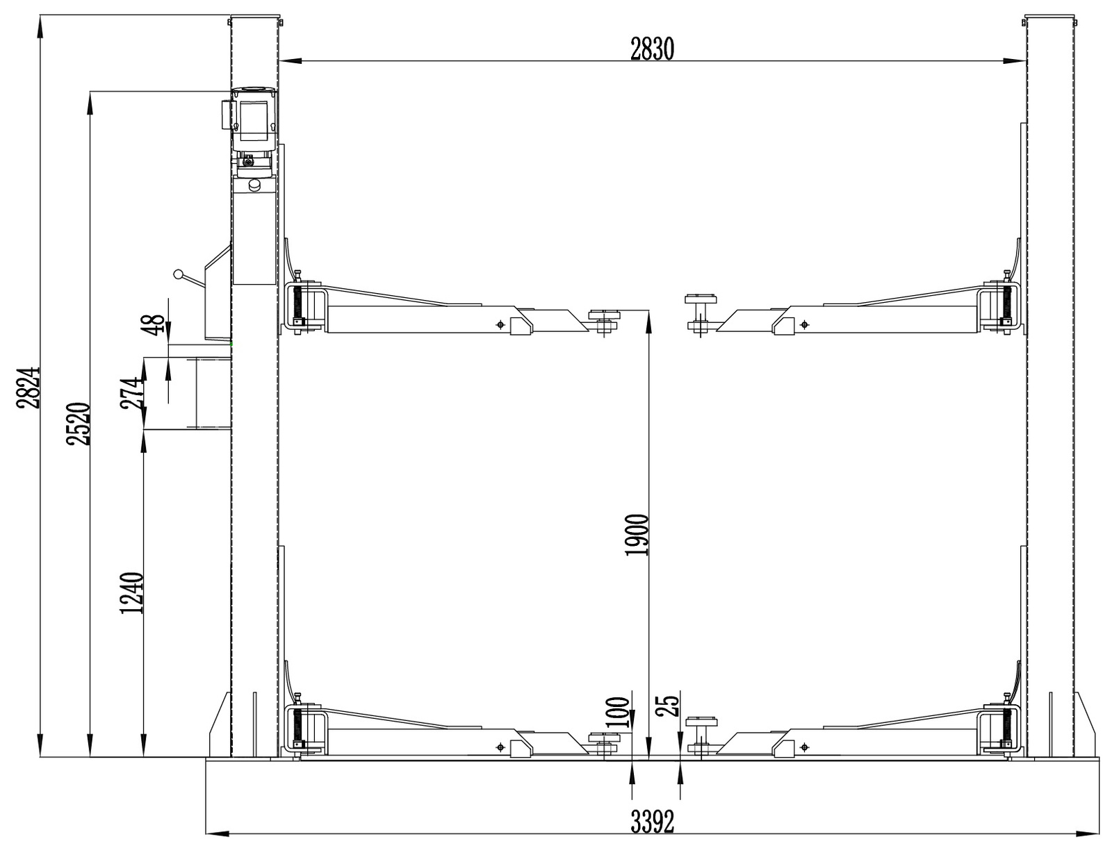
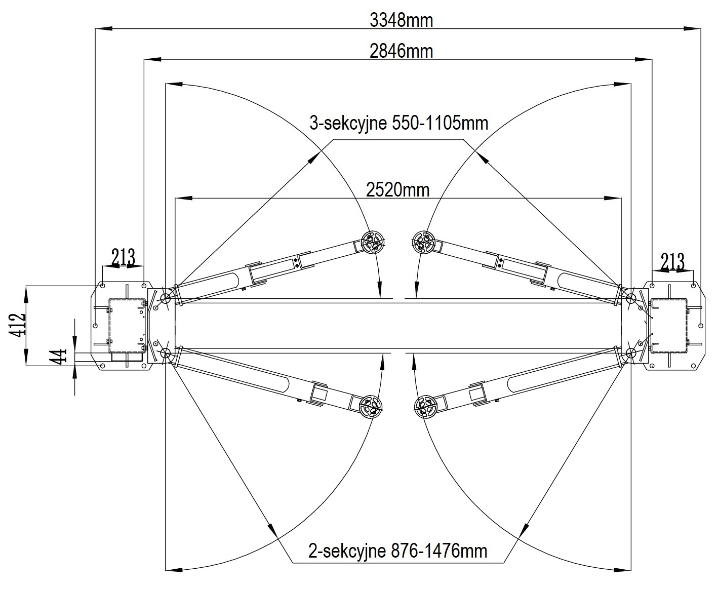
Głównymi zaletami prezentowanego modelu są precyzyjne wykonanie, solidna konstrukcja oraz niezawodne podzespoły ( wszystkie nasze podnośniki wyposażone są w aluminiowe pompy oleju ). Podnośnik wyposażony jest w system AMT. Automatyczna dźwignia AMT nie służy jedynie do podnoszenia i opuszczania pojazdów, ale jednocześnie zwalnia blokady bezpieczeństwa. Podnośnik TL0002 podnosi na 1900mm, ma niski przejazd 25mm, jest wyposażony w osłony kolumn oraz gniazdo 230V na skrzynce sterującej. Przednie ramiona posiadają 3-sekcyjną konstrukcję teleskopową. Najkrótszy rozstaw ramion (550mm) umożliwia podnoszenie małych pojazdów osobowych. Maksymalny rozstaw ramion (1476mm) jest niezbędny do stabilnego ustawienia i bezpiecznej obsługi aut dostawczych. Ramiona w podnośniku są asymetryczne i rozkładają się na zewnątrz, dzięki czemu możliwe jest zachowanie optymalnej równowagi podnoszonego pojazdu. W standardowym wyposażeniu podnośnika znajduje się komplet dystansów o wysokości 80mm. Są one niezbędne przy obsłudze aut dostawczych z plandeką, oraz samochodów terenowych podnoszonych za ramę. Podpory umieszczane pod pojazdem są wykręcane oraz wpinane na zatrzask do ramion i dystansów.
Podnośnik automatyczny
Zaletą podnośnika automatycznego jest wygodne sterowanie procesem podnoszenia i opuszczania za pomocą dźwigni, bez konieczności ręcznego zwalniania blokad przy każdej kolumnie. Rozwiązanie skraca czas obsługi podnośnika, gdyż pracownik nie musi przechodzić na drugą stronę pojazdu w celu odbezpieczenia blokad.
Bezpieczeństwo
System zapadek zabezpieczających aktywuje się automatycznie w trakcie podnoszenia auta. Ponadto, wyłącznik krańcowy zatrzymuje proces podnoszenia w momencie, gdy podnośnik osiąga maksymalną wysokość. Wyłącznik krańcowy zamontowany jest również w najniższym położeniu wózków podnośnika, dzięki czemu przeciążenia układu hydraulicznego zostały zredukowane do minimum. Dodatkowo, wózki podnośnika wyposażone są w gumowe zabezpieczenia, chroniące drzwi pojazdu przed uszkodzeniem. Podnośnik wyposażony jest także w ostrzegawczy sygnalizator dźwiękowy informujący personel o pracy podnośnika w czasie gdy pojazd jest opuszczany. Na pulpicie sterowniczym znajduje się też wyłącznik awaryjny, który pozwoli na natychmiastowe przerwanie pracy podnośnika w niebezpiecznej sytuacji.
Wieloletnia trwałość
Precyzyjne wykonanie komponentów przekłada się nie tylko na dłuższą żywotność podnośnika, ale gwarantuje lepszy komfort pracy. Specjalnej konstrukcji blokady elektromagnetyczne gwarantują cichą pracę podnośnika. Wysoka jakość zastosowanych materiałów jest gwarancją niezawodnego użytkowania podnośnika przez wiele lat. Wszystkie nasze podnośniki wyposażone są w niezawodne i bezawaryjne pompy aluminiowe. Elementy mechaniczne (łańcuch, siłownik, ślizgi, liny) zabezpieczone są specjalnymi maskownicami, zamontowanymi po wewnętrznej stronie każdej z kolumn.
Dokumenty do UDT
Wszystkie podnośniki Techwar posiadają ważny certyfikat CE wydany przez jednostkę notyfikowaną w Unii Europejskiej oraz spełniają niezbędne wymogi do rejestracji w Urzędzie Dozoru Technicznego. Razem z podnośnikiem otrzymują Państwo dwa egzemplarze dokumentacji technicznej. Do zgłoszenia podnośnika niezbędne są dokumenty budowlane, elektryczne oraz protokół montażu znajdujący się w dokumentacji podnośnika.
Serwis i gwarancja
Podnośniki Techwar objęte są 5-letnią gwarancją. Warunkiem gwarancji jest wykonanie montażu przez autoryzowanego instalatora oraz regularne wykonywanie przeglądów serwisowych. Mobilny serwis wykonuje wszystkie naprawy gwarancyjne u klienta, w miejscu gdzie zamontowany jest podnośnik. Dzięki temu nasi klienci mają pełną kontrolę nad przebiegiem naprawy lub przeglądu, a przede wszystkim, nie tracą czasu na demontaż, wysyłanie i ponowny montaż naprawianych, bądź wymienianych podzespołów. Posiadamy wszystkie znormalizowane części do naszych podnośników, elementy eksploatacyjne (liny, ślizgi, elementy gumowe), jak również podzespoły mechaniczne, hydrauliczne oraz elektryczne.
Przygotowanie podłoża
Podstawowe wymagania dotyczące przygotowania podłoża pod montaż podnośnika dwukolumnowego:
Minimalne wymiary podłoża: długość – 4000mm, szerokość – 1000mm, głębokość – 250mm
Powierzchnia, na której będzie posadowiony podnośnik winna być jednorodna i płaska.
Dopuszczalna różnica poziomu do 1cm na 4m
Beton B25/30
| Model: | TL0002-230V |
| Max udźwig: | 4000kg |
| Wysokość podnoszenia: | 1900mm |
| Wysokość po opuszczeniu: | 100mm |
| Ramiona tylne : | 876-1476 mm (2-sekcyjne) |
| Ramiona przednie: | 550-1105 mm (3-sekcyjne) |
| Szerokość między kolumnami /robocza: | 2830mm |
| Szerokość pomiędzy wózkami: | 2520 mm |
| Czas opuszczania: | 30s |
| Czas podnoszenia: | 40s |
| Moc silnika: | 2.2kW |
| Zasilanie: | 230V |
| System blokad: | Automatyczne AMT |
| Gniazdo 230V na skrzynce : | TAK |
| Pompa Oleju : | Aluminiowa |
| Wyłącznik awaryjny: | TAK |
| Blokada obrotu ramion : | TAK |
| Osłony wewnętrzne kolumn: | TAK |
| Adaptery do busów: | 4x80mm |
| Kotwy montażowe : | W zestawie |
| Poziom hałasu: | ≤ 70 dB |
| Waga :: | 600 kg |
| Gwarancja: | 5 lat (pod warunkiem serwisowania) |











