Łatwy zwrot towaru
Podnośnik parkingowy TC0005 3600KG
Dostępne kolory: szary antracyt / biały + antracytowe najazdy
Wieloletnia trwałość
Wyposażenie opcjonalne
1. Plastikowe wanny wypełniające przestrzeń pomiędzy platformami chronią pojazd parkowany na
dole ( z góry może kapać olej, zimą dość często odpadają z podwozia fragmenty lodu lub śniegu)
2. Zestaw mobilny umożliwiający łatwe i bezpieczne przemieszczanie podnośnika w garażu.
3. Zestaw adapterów 90 umożliwiający montaż jednostki napędowej od czoła kolumny.
Wieloletnia trwałość
Precyzyjne wykonanie komponentów przekłada się nie tylko na dłuższą żywotność podnośnika,
ale gwarantuje lepszy komfort pracy. Wysoka jakość zastosowanych materiałów jest gwarancją
niezawodnego użytkowania podnośnika przez wiele lat. Podnośniki parkingowe, których oferta
skierowana jest do najbardziej wymagających klientów, poddawane są dodatkowej kontroli
jakości.
Dokumenty do UDT
Wszystkie podnośniki Techwar posiadają ważny certyfikat CE wydany przez jednostkę
notyfikowaną w Unii Europejskiej oraz spełniają niezbędne wymogi do rejestracji w Urzędzie
Dozoru Technicznego. Razem z podnośnikiem otrzymują Państwo pełną dokumentację
techniczną dla UDT.
Serwis i gwarancja
Podnośniki Techwar objęte są 2-letnią gwarancją. Posiadamy wszystkie znormalizowane części
do naszych podnośników, elementy eksploatacyjne, jak również podzespoły mechaniczne,
hydrauliczne oraz elektryczne.
Przygotowanie podłoża
Podstawowe wymagania dotyczące przygotowania podłoża pod montaż podnośnika
parkingowego:
Powierzchnia, na której będzie posadowiony podnośnik winna być jednorodna i płaska.
Dopuszczalna różnica do 0,5cm na 3m długości.
Podłoże, na którym będzie zainstalowany podnośnik powinno być suche przez co najmniej 15 dni,
co gwarantuje uzyskanie odpowiedniej jego odporności.
Grubość betonu powinna być nie mniejsza niż 15cm
Możliwy transport oraz montaż podnośnika przez wykwalifikowanych pracowników posiadających uprawnienia UDT.
Więcej informacji pod numerem 606 91 97 92.
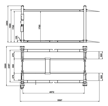
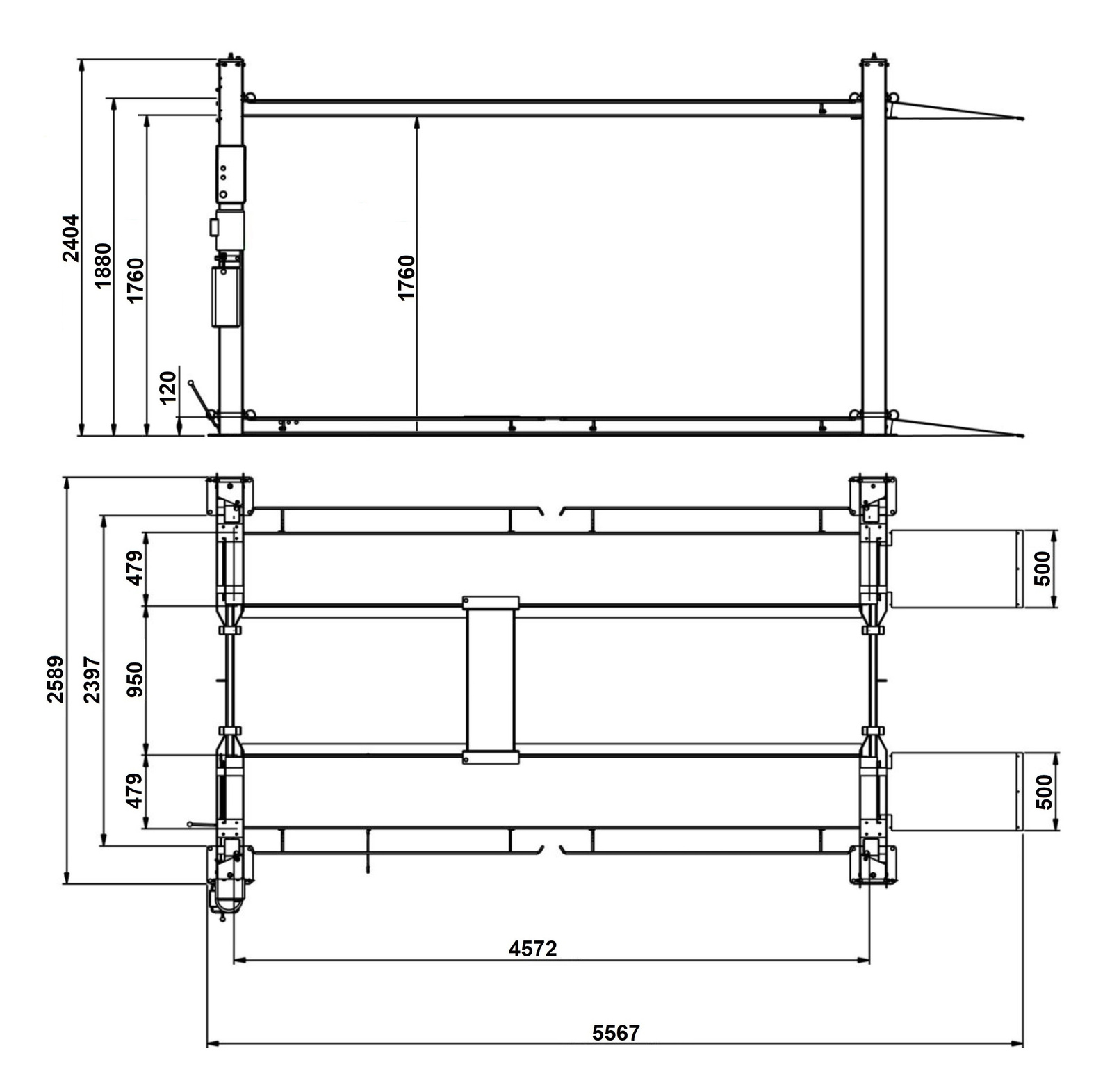
| Udźwig: | 3600kg |
| Model: | TC0005 |
| Maksymalna wysokość podnoszenia: | 1880mm |
| Minimalna wysokość platformy : | 120 mm |
| Szerokość między platformami : | 950 mm |
| Długość platform: | 4572 mm |
| Szerokość platform: | 479mm |
| Maksymalna wysokość pod platformą: | 1760mm |
| Szerokość całkowita : | 2589 mm |
| Moc silnika: | 2,2 kW |
| Możliwość demontażu najazdów : | TAK |
| Długość całkowita z najazdami: | 5567 mm |
| Napięcie zasilania: | 230V |
| Czas podnoszenia: | 55 s |
| Waga: | 845kg |
| Blokada bezpieczeństwa : | TAK |
| Zabezpieczenie: | 16 A |
| Automatyczny wyłącznik krańcowy : | TAK |
| Wyłącznik awaryjny: | TAK |
| Gwarancja: | Do 5 lat (pod warunkiem serwisowania) |








